【商談中】 家も庭も広々としています。
【売買】No.189 身延町清子
| 種別 | 買う:中古一戸建て |
|---|---|
| 価格 | 250万円 |
| 詳細 |
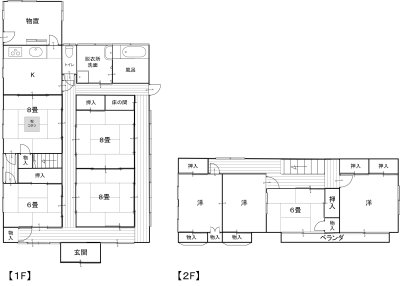
■建物:のべ182.16㎡ ■構造:木造 ■間取:別添のとおり ■公共交通:駅まで3.8㎞ ■電気:引込済み ■ガス:プロパンガス ■風呂:灯油 ■水道:上水道 ■下水道:浄化槽 ■トイレ:水洗洋式 ■駐車場:4台 ※物件詳細は【身延町空き家バンク利用者登録】をして頂いた後でのご案内となります。 |
| 関連リンク |
身延町役場HP【空き家・土地バンク】 ご利用の流れと【身延町空き家バンク利用登録申込書類】のダウンロードはこちら… |
| お問い合わせ先 | 身延町 企画政策課 山梨県南巨摩郡身延町切石350 TEL: 0556-42-4801 FAX: 0556-42-2127 HP: https://www.town.minobu.lg.jp |
| 地図 |
